8X10 Bathroom Plans / Best Layout Room 8x10 Master Baths : The other thing is that the model motivates you cleaning by yourself.

8X10 Bathroom Plans / Best Layout Room 8x10 Master Baths : The other thing is that the model motivates you cleaning by yourself.. Access to natural light if possible and are well lit. 4x10 storage closet ideas photos houzz. It even allows for a large shower enclosure if you prefer this over a bathtub. 8 x 10 closet design image of bathroom and. You can find out about all the symbols used on.

Use code mystyle in cart or at checkout to enjoy savings of; It will streamline your thoughts and help you visualize design and decor solutions. It's boring ;) i don't like the idea of staring at the toilet when i walk by the door. After all, with the shower at about 2.5' x 5' and the cabinet being 2' x 4', it's only about 30 more sf. 8×12 bathroom floor plans bathroom floor plans 8 x 10 bathroom.

Very Small Jack And Jill Bathroom
Very Small Jack And Jill Bathroom from st.hzcdn.com
Home makes great use of large decks for entertaining. Conquer your daily bathroom schedule by building the napoleon bathroom addition. 25 best walk in closet storage ideas and designs for master bedrooms. Here are 21 of our favorite bathroom floor plans. A 5' x 8' is the most common dimensions of a guest bathroom or a master bathroom in a small house. Große auswahl an adore bathroom. The floor plan is square subdivided into two rectangles. It is nearby with the crucial 8×10 bathroom design.if you want to open the picture gallery please click photo image below.

Apart from basic fixtures, you can have a corner shower bath, single bowl vanity unit , wall cabinet for bathroom toiletries in medium spaced bathroom.

How to design a closet. They certainly spent their fair share on this bathroom remodel, but according to our bathroom renovations cost estimator, the average cost to remodel a bathroom is $7,920. Mature yard to enjoy lots of gardening. 8x10 bathroom remodel design mcahamilton 8 10 bathroom layout btproject co 8 x 10 bathroom ideas photos houzz master bathroom floor plans 8 10 bathroom layout uxoinlaos info 8 10 bathroom noonlinezet co 8 10 bathroom layout uxoinlaos info 8 x 10 master bathroom layout google search bathroom in. When autocomplete results are available use up and down arrows to review and enter to select. Rules of thumb for layout. Four pillars of design ideas for a small bathroom layout. Hello, i'm new to this forum but have been around gw for a while. It is nearby with the crucial 8×10 bathroom design.if you want to open the picture gallery please click photo image below. Daylight basement has bonus rm w/ wet bar and 2 more bedrooms/bath. The spruce / theresa chiechi. Ideas and designs for a small bath remodel in the master suite is largely a matter of personal taste and cost. When we talk about 10 x 8 bathroom ideas then we will certainly consider 10 x 8 bathroom design and numerous things.

In this custom bathroom remodel, they incorporated ceramic, gold tile along the wall, marble counters, gold and red accents throughout and an asian theme. 10% on orders $49+ 20% on orders $99+ 25% on orders $199+ bathroom design and installation services, lighting, puretide & novita seats are excluded from this promotion When we talk about 8×10 bedroom design after that we will certainly think about 8 x 10 bathroom designs as well as lots of points. Detached 8x10 heated new jersey: Find out as i share the ins and outs of various small bathroom floor plans, including small master bathrooms.

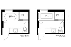
21 Bathroom Floor Plans For Better Layout
21 Bathroom Floor Plans For Better Layout from www.sunrisespecialty.com
Currently the plans show a bathroom that our draft person added when i had nothign to give him. It even allows for a large shower enclosure if you prefer this over a bathtub. You can find out about all the symbols used on. Rules of thumb for layout. The bathroom needs to be located in a private position in the floor plan within easy reach of the bedrooms. Use code mystyle in cart or at checkout to enjoy savings of; Walk in closet design ideas. Werkzeug und baumaterial für profis und heimwerker.

Looking at a washing machine next to the bathroom tub or sink basin.

They certainly spent their fair share on this bathroom remodel, but according to our bathroom renovations cost estimator, the average cost to remodel a bathroom is $7,920. Super angebote für adore bathroom hier im preisvergleich. Small bathroom plans 5 x 7 my web value. This gives you options for door layouts and for window locations as well. This bathroom plan begins with an entryway in the center of the room, creating a spacious feeling. It leads right into a large, raised jacuzzi style tub. Mar 15 2016 8 x 12 master bathroom floor plans google search. 5 out of 5 stars. It's boring ;) i don't like the idea of staring at the toilet when i walk by the door. Hello, i'm new to this forum but have been around gw for a while. It will streamline your thoughts and help you visualize design and decor solutions. When we talk about 8×10 bedroom design after that we will certainly think about 8 x 10 bathroom designs as well as lots of points. Area for medium bathroom floor plan is around 61 square feet to 100 square feet.

Image courtesy of jorge castillo design. Hello, i'm new to this forum but have been around gw for a while. Touch device users, explore by touch or with swipe gestures. The floor plan is square subdivided into two rectangles. Ideas and designs for a small bath remodel in the master suite is largely a matter of personal taste and cost.

Small Bathroom Space Arrangement Creativity Engineering Feed
Small Bathroom Space Arrangement Creativity Engineering Feed from engineeringfeed.com
Well, since the bathroom footprint was small, 5' x 10', and they were going to take out the tub and build in a nice shower stall in it's place, i suggested that they go ahead and redo the floor too. This 5 x 8 plan places the sink and toilet on one side, keeping them outside the pathway of the swinging door. 8×12 bathroom floor plans bathroom floor plans 8 x 10 bathroom. This plan features both a shower stall and a bathtub, both of which are valuable for those busy mornings when two need to bathe at once. These eight lessons illustrate the common plan options and describes the advantages and disadvantages of each. Here are 21 of our favorite bathroom floor plans. This is especially helpful when you live in a minimalist apartment or house. Werkzeug und baumaterial für profis und heimwerker.

You can find out about all the symbols used on.

25 best walk in closet storage ideas and designs for master bedrooms. Medium size bathroom is easy to design and falls into the most common bathroom type. You can also save and share your drawings until you're ready to make your dream bathroom come true. This gives you options for door layouts and for window locations as well. They certainly spent their fair share on this bathroom remodel, but according to our bathroom renovations cost estimator, the average cost to remodel a bathroom is $7,920. Touch device users, explore by touch or with swipe gestures. 8x10 bathroom remodel design mcahamilton 8 10 bathroom layout btproject co 8 x 10 bathroom ideas photos houzz master bathroom floor plans 8 10 bathroom layout uxoinlaos info 8 10 bathroom noonlinezet co 8 10 bathroom layout uxoinlaos info 8 x 10 master bathroom layout google search bathroom in. How to design a closet. If you have the budget, this is an excellent bathroom plan that provides tons of flexibility. This bathroom has a lot of open space in the middle of the room with functional areas along the perimeter, such as a sink and makeup area. There are four basic criteria that govern the way any layout is built. The bathroom needs to be located in a private position in the floor plan within easy reach of the bedrooms. 8 x 10 closet design image of bathroom and.

8X10 Bathroom Plans / Best Layout Room 8x10 Master Baths : The other thing is that the model motivates you cleaning by yourself. 8X10 Bathroom Plans / Best Layout Room 8x10 Master Baths : The other thing is that the model motivates you cleaning by yourself. Reviewed by Ruth Idea Pics on Juni 09, 2021 Rating: 5

Tidak ada komentar:

Diberdayakan oleh Blogger.
banner